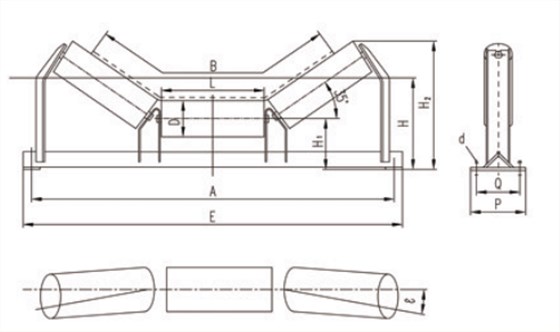
槽型托輥產品參數
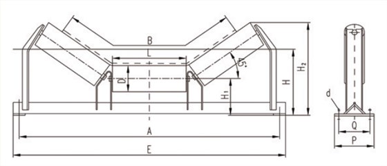
槽型前傾托輥產品參數
槽形托輥:用于承載分支輸送散狀物料。一般由2~5個組成,其數目由帶寬和槽角決定,外側輥子與水平線的夾角稱為托輥槽角。托輥槽角增大后(0°~60°范圍內)使物料堆積斷面增大能提高生產能力,有防止撒料、跑偏的作用。
槽形托輥有普通型托輥、前傾型托輥、快換軸承型托輥、吊掛型托輥、三鏈托輥、可逆托輥、變槽角型托輥、過渡型托輥、V型托輥等類型。
槽型托輥的特點:
1、槽型托輥具有耐腐蝕性特點:酸堿鹽均對其不起腐蝕作用。
2、硬度強。
3、密封性好:槽型托輥全密封,兩端裝有塑料迷宮密封圈,油滑油脂不會泄漏,可使滾動軸長期;槽型托輥處于全密封狀態下運轉。
4、槽型托輥陶瓷表面:形成氧化膜,表面光滑,不粘附物料,與輸送帶接觸摩擦系數小,降低了卷揚驅動力。
5、槽型托輥使用壽命長:槽型托輥比鋼托輥使用時間長2-5倍,且能減少皮帶磨損,皮帶不跑邊,延長皮帶使用壽命。
6、運營成本低:槽型托輥能降低皮帶運輸機的綜合成本,減少維修工時。
槽型托輥廣泛用于露天粉塵較大,腐蝕性高的環境中、如礦山、電廠、鋼廠、石料廠、水泥廠、洗煤廠、鹽廠、堿廠、化肥廠、碼頭等所有運送場所經常使用槽型托輥。
注意事項:
槽型托輥用于輸送散狀物料,其槽角為30°;

雙箭-緩沖托輥
雙箭-電動滾筒
雙箭-DTII帶式輸送機
雙箭-拉繩開關
雙箭-鼠籠式滾筒
雙箭-滾花式滾筒
雙箭-V型空段清掃器
雙箭-不銹鋼緩沖床Y